苏州龙湖时代天街地址 苏州龙湖时代天街142平米户型解析
苏州龙湖时代天街地址 苏州龙湖时代天街142平米户型解析
【摘要】苏州楼盘众多,相信很多人都已经挑花了眼。今天苏州装一网小编跟大家介绍一下苏州龙湖时代天街楼盘,苏州龙湖时代天街项目2016年建成,建筑面积750000平方米,位于新区狮山路与塔园路交汇处,周围有三大名校,自带景观园林,更有为28万业主提供的龙湖物业。
苏州龙湖时代天街项目,由中国地产10强龙湖地产联合世界高端品牌打造的TOP级天街系商业产品。项目总建面积约75万平方,位于苏州高新区狮山路CBD核心板块,户型面积105-180平方米。紧邻1、3号线双地铁,苏州乐园站下车即可到达。

苏州龙湖时代天街基本信息
地址:新区狮山路与塔园路交汇处
所属区域:新区狮山
产权描述:70年产权
物业类别:住宅
建筑年代:2016年建成
开发商:龙湖地产
建筑结构:钢筋混凝土、砖混
建筑类型:塔楼
建筑面积:750000平方米
占地面积:11419平方米
房屋总数:1606户
楼栋总数:7栋
物业公司:龙湖物业
绿化率:35%
容积率:4.70
物业费:3.51元/平米·月
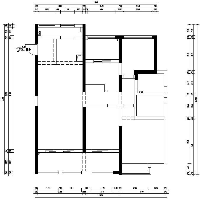
苏州龙湖时代天街户型图介绍

苏州龙湖时代天街142平米户型解析

户型解析:两个卧室朝南,通透以及采光性能好。南北通透,阳光空气自由穿行。客厅配备开放阳台,豁达实用。餐厅客厅不分离,既显空间宽敞又显布局合理。 卧室以及客厅均带有阳台,空间较大,通透性能较好。
“以上苏州楼盘信息文章展示,仅为装一网网友提供苏州楼盘最新信息、户型图、样板间装修参考,非苏州楼盘广告宣传,投资有风险,购买需谨慎”
-
- 吉林建龙与吉林金隅冀东签署全面合作框架协议
-
2025-11-02 08:30:07
-
- “拟撤销英语等 6 个本科专业”?中科大回应
-
2025-11-02 08:27:52
-
- 马云回国后又一重磅消息!联合国把全球粮食应急运输的重任交给菜鸟
-
2025-11-02 06:39:42
-
- 千灵山风景区游玩攻略
-
2025-11-02 06:37:27
-
- 著名诗人余光中经典诗作《当我死时》留无限惆怅
-
2025-11-02 06:35:11
-
- 上海大众高尔夫r20(大众高尔夫R20年版)
-
2025-11-02 06:32:57
-
- 荣耀不讲武德!发布两个月就降价,5800mAh手机仅1319元
-
2025-11-02 06:30:42
-
- 晶兵总动员,还记得你小时候看过吗?
-
2025-11-02 06:28:26
-
- 《我的波塞冬》10月下旬开播,张云龙李凯馨演绎海神浪漫爱情童话
-
2025-11-02 06:26:11
-
- 泉州旅游感受沿海生活(五一来泉州西街)
-
2025-11-02 06:23:56
-
- 夫妻闺房之乐,怎样做才能都得到满足?
-
2025-11-02 06:21:42
-
- 阳朔两日游自由行攻略
-
2025-11-02 06:19:27
-
- 破产姐妹天天美剧(分享美剧 《破产姐妹》)
-
2025-11-02 04:20:08
-
- 滴滴发全员内部信:柳青升任永久合伙人,公司不再设总裁岗位
-
2025-11-02 04:17:53
-
- 美共和党议员爆料:特朗普已准备“彻底扭转”拜登的电动车政策
-
2025-11-02 04:15:39
-
- 元气森林第三次做纯水,瞄准2元价格带
-
2025-11-02 04:13:24
-
- 那英被大批粉丝追拍,躲避时摔倒!网友:她都56岁了,不能放过她吗?
-
2025-11-02 04:11:08
-
- 2025年德国出口武器装备创造历史纪录 乌克兰成为第一大接收国
-
2025-11-02 04:08:53
-
- 冯庸大学的旧影!
-
2025-11-02 04:06:38
-
- 潮州金山实验学校中考(潮州市金山实验学校)
-
2025-11-02 04:04:23



姜昆、侯耀华、石富宽、王谦祥见到马志明怎么称呼?
宠养中常见的10种陆龟,养一只也不错